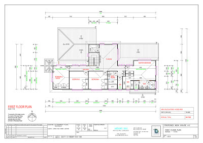
It has been 9 revisions since I last posted, and at version 12 with Anthony Rigg from Bleuscape, we are so close to exactly what we want.
It looks likely we will go with Nuvo homes as our builders. They are not the cheapest, but our account manager, Bill Andrews, has been just brilliant, and if we do sign with them this week, it is all down to him. (He works out of their Durack display home, and I cant recommend him enough)
We still have to get final pricing before signing, as we are over budget, so we are doing all we can to cut down the costs around the house... how we cut $35k off I have no idea.
A new law came into affect on May 1, stating that all windows upstairs in a two story house can in essence not open more than 10-12cm unless you have security grills or Crimsafe (or similar). It's to prevent children falling out, but how do you cool a home in an environmentally friendly way with 10cm of window openings? I guess shares in Crimsafe or security grills are going to go up!
Click here to read more on the new rules
Our almost final plans (few small changes, window changes etc) are below.
_Page_3.jpg)
_Page_4.jpg)